Copyright©2011-2016 版权所有:甘肃省甘南州夏河县人民政府 地址:甘肃省甘南州夏河县拉卜楞镇浪格塘046号
投稿信箱:gnzdjg@126.com ICP备案:陇ICP备11000231号-1 网站标识码:6230270001
甘公网安备:62302702270003 技术维护单位:博达软件
| 时间:2026-01-23 作者: 点击数: |
|
|
|
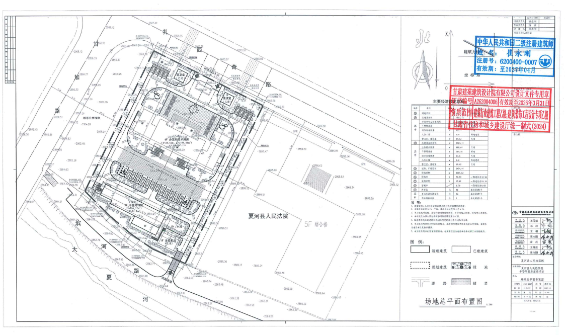
按照《中华人民共和国城乡规划法》相关规定,我局拟对夏河县人民检察院干警周转房建设项目进行规划审批前公示,现将有关情况公示如下: 一、项目位置 该项目位于夏河县拉卜楞镇麻莲滩村扎西齐路南侧夏河县人民检察院后院南侧。 二、规划条件 用地面积:总用地6667.5平方米(约10亩)。 用地性质:行政办公用地。 经济技术指标:容积率≤2.5;建筑密度≤35%;绿地率≧30%;建筑限高:≤30米。 三、规划方案 按照审定的夏河县人民检察院干警周转房建设项目规划方案,拟核准总建筑面积986.22平方米(地上986.22平方米,地下/平方米)。 夏河县人民检察院干警周转房建设项目方案指标:容积率0.7、建筑密度17.81%、绿地率30.1%; 夏河县人民检察院干警周转房建设项目建筑高度:12.4米。 四、总平面图 详见附图。 现公开征求周围住户及单位意见,如有异议,请在公示期内以书面材料告知我局;逾期未提出异议,视为同意。 公示时间:2026年1月23日至2026年1月29日(7日) 受理股室:空间规划监督管制股 地点:夏河县浪格塘004号(夏河县自然资源局空间规划监督管制股) 联系电话:0941-7121298 附件:夏河县人民检察院干警周转房建设项目场地总平面布置图。
相关链接 |
| 【关闭窗口】 |